横浜市港北区|全面リフォーム|ご夫婦おふたり|こだわりのクロスと設備で快適で洗練された空間へ

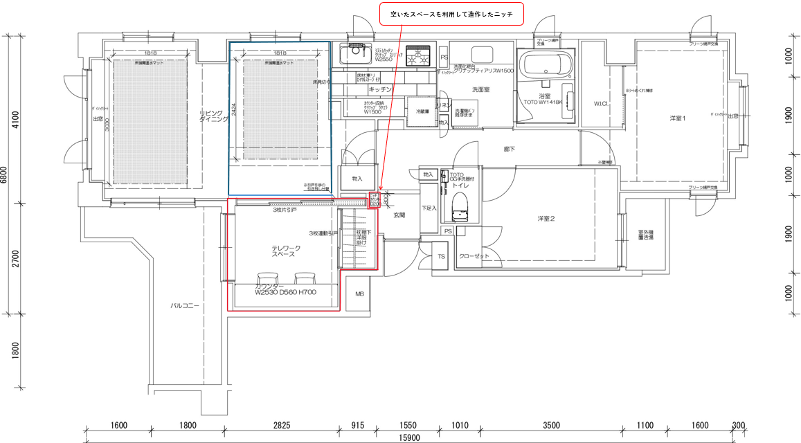
リビング・ダイニングは、ワークスペースと一体化して開放的に

ぱっと目を引くブルーのアクセントクロスが素敵なワークスペース

夜は間接照明で落ち着いた雰囲気に

奥様がイメージされた厨房のような恰好良いキッチン

幅1500mmの広々とした洗面台

グレーで統一した高級感のある浴室

レモン柄のアクセントクロスで、お気に入りの空間へ

ニッチを造設。お気に入りの花が飾れるようになった玄関スペース

  • 施工エリア

    横浜市港北区

  • 構造

    鉄筋コンクリート造

  • 築年数

    築22年

  • 工期

    46日

  • 金額

    830万円(税込)

  • 工事内容

    3LDK

◼︎施工前画像

◼︎担当者の声

お子息が独立され、これからのご夫婦お二人の暮らしをお考えになってのリフォームでした。
お客様のご要望は、『過ごしやすく、快適なものにしたい』というものでした。
お客様ご納得の設備(キッチン、お風呂、洗面室、トイレなど)をご選択、設置できましたこと、
また、各部屋ごとのアクセントクロス、照明、収納にも満足いただきましたこと、大変嬉しく思っております。

◼︎お客様の声

水回りの設備は、老朽化していたため、新しいものに取り換えることを希望していました。
キッチン、お風呂、洗面、トイレとイメージしていた思い通りの仕上がりとなり、満足しています。
ワークスペースについても、アクセントクロス、カウンター、飾り棚もイメージ通りになり、気に入っています。
また、ワークスペースはリビング・ダイニングと一体化されたことで、開放感があり嬉しく思っています。

◼︎リフォームのご要望

● キッチン
奥様がご希望されていたのは「厨房のようなキッチン」。そこで、カウンターはステンレス製のものを、床はダークグレーのフロアタイルをご選択。高級感のあるキッチン空間が完成しました。

● 浴室、洗面室
浴室、洗面もお客様がご希望であったグレー調のもので統一され、ホテルライクな洗練された空間となりました。

● トイレ
奥様お気に入りの『レモン柄』のアクセントクロスがぱっと目を引く、とてもおしゃれなトイレ空間が完成しました。

● 和室をフローリングにしてワークスペースへ
・デスクと飾り棚
インテリアカウンターを設置。壁にはお客様がお持ちのインテリアを飾るために飾り棚を。
お客様のご要望通り、2段に分けてバランス良く重ねました。夜は間接照明により、ますます素敵な空間へ。

・ワークスペースを仕切る3枚引き戸の設置
仕事をされるときには3枚引き戸を閉じ、また、来客時など人が集まるときには引き戸を開けてダイニングとワークスペースをつなげて使用できるようにしました。

◼︎プランのポイント

● 玄関にニッチの造設をご提案
クローゼットの裏側にスペースができたため、玄関側にニッチの造設をご提案しました。
お客様のお好きなお花を飾り、素敵な玄関空間となりました。

Before

After

←いいねはこちら

お問い合わせ

お問い合わせいただきましたお客様には
担当者より順次対応をさせていただきます。

お名前 必須
メールアドレス 必須
ご相談内容
(複数選択可)必須
お住いの地域 必須
お問い合わせ内容

弊社のプライバシーポリシーをお読みいただき、すべての内容に同意のうえ送信ください。

お電話で
お問い合わせ
フォームで
お問い合わせ
MENU
PAGE TOP